TREE APPARTMENT
CATEGORY Apartment
YEAR 2013
CLIENT Private
AREA 100 sqm
LOCATION Milano, Via Eustachi
ACTIVITIES Design concept, interior design, executive drawings, site management
IN COLLABORATION WITH Arch. Matteo Martini
CONCULTANTS Artist Giovanna Canegallo
“L'illuminazione ritorna all'albero in muratura. Dalle due estremità della sala, arredi qualunque, elevazioni armoniche si congiungono.”
(Arthur Rimbaud da Veglie II)
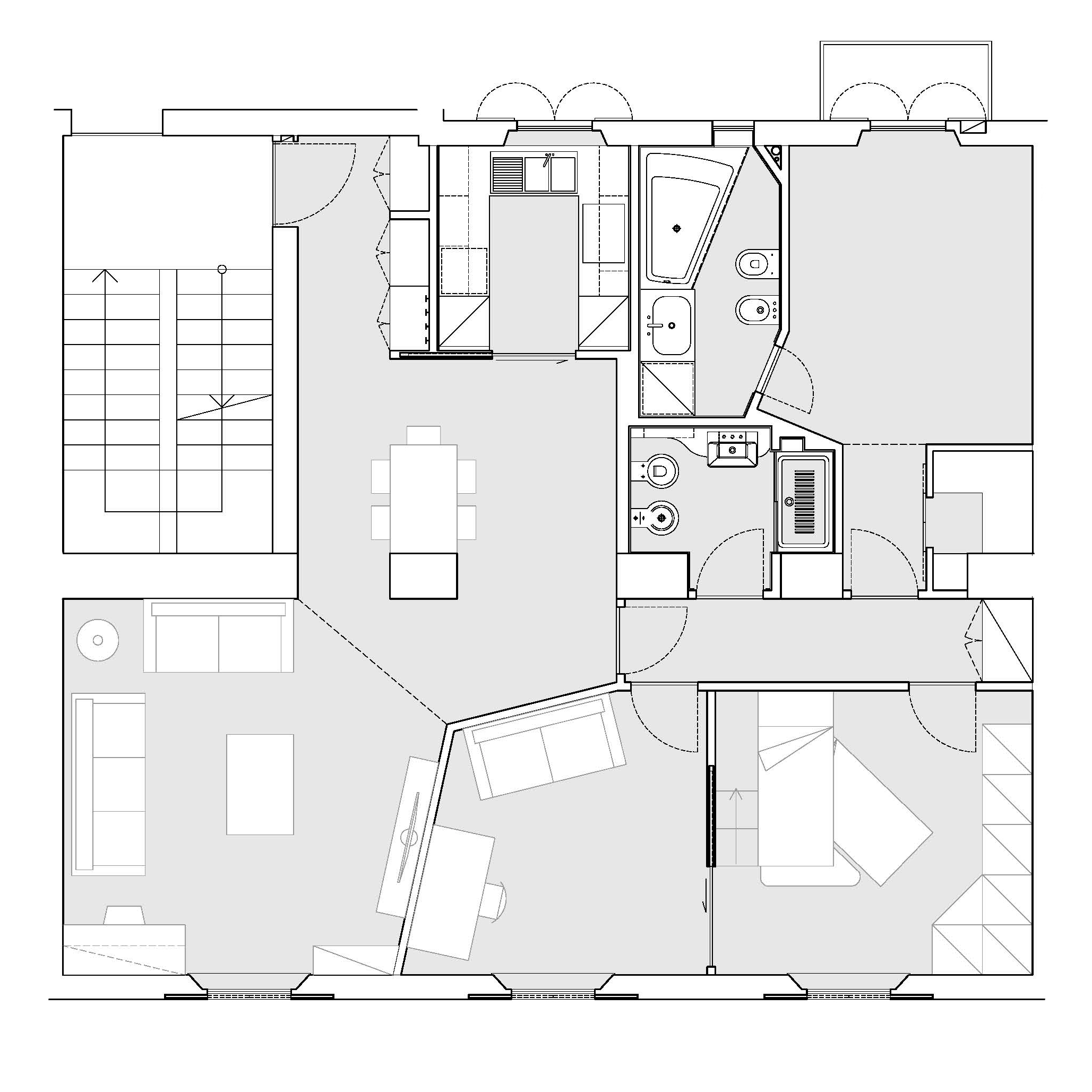
La volontà dei committenti, una giovane coppia con due figli piccoli, di rinnovare completamente lo spazio in cui vivono è stato lo spunto per ripensare e stravolgere - spazio per spazio, funzione per funzione - l'intera pianta di un appartamento di 110 mq.
Il layout originario soffriva della presenza di una cucina irrazionale e di un ingresso poco luminoso che, attraverso un lungo corridoio, conduceva alla zona giorno.
La richiesta dei clienti è stata dunque di realizzare un progetto che favorisse una maggior connessione tra zona cucina, pranzo e soggiorno. Da qui l'idea di inclinare una parete in modo da ampliare l'apertura tra le due parti, e di trasformare il vincolo del pilastro portante, che cade al centro della zona living, in elemento centrale e nuovo punto focale dello spazio. Con l'intervento dell'artista Giovanna Canegallo, il pilastro, affettuosamente ribattezzato ”l'albero in muratura” (citazione di un verso di Rimbaud), è divenuto sì opera d'arte, ma soprattutto centro nevralgico della comunità familiare che vi si riunisce nei momenti più importanti e di convivio.
The clients' desire -a young couple with two young children-, to completely renovate the space in which they live was the input for rethinking and twisting space by space, function by function, the entire floor plan of a 110-square-meter apartment.
The original layout suffered from the presence of an irrational kitchen and a lackluster entrance hall that led through a long corridor to the living area.
The clients' request, therefore, was to create a design that would encourage a greater connection between the kitchen, dining and living areas. Hence the idea to angle a wall to widen the opening between the two parts, and to transform the constraint of the supporting pillar, which falls in the middle of the living area, into a central element and new focal point of the space. With the intervention of the artist Giovanna Canegallo, the pillar, affectionately renamed "the tree in masonry" (a quotation from a verse by Rimbaud), has become, yes, a work of art, but above all, the nerve center of the family community that gathers there during the most important and convivial moments.
